再现“水晶宫”南通仁恒置地营销中心
再现“水晶宫”南通仁恒置地营销中心
▼工程概况:
工程名称:仁恒南通中创置地世纪营销中心及样板房幕墙工程
地址:南通市世纪大道与太平路交汇处中创置地世纪项目
业主单位:仁恒置地集团
项目面积:3200㎡
硬装设计/软装设计:HWCD
主案设计:Rita Fabiano
▼第一个“水晶宫”
于2017年9月26日签约绍兴嵊州融信营销中心,采用260*90*8mm超白钢化蒙砂U型玻璃4500平。
荣获:2017-2018年度第四届“地产设计大奖·中国”——优秀奖

▼再现"水晶宫"南通仁恒置地营销中心
公司于2018年12月签约南通仁恒置地营销中心U型玻璃工程,采用330*70*7mm超白钢化蒙砂U型玻璃4000平。
柯布西耶——
“建筑是一种艺术行为,一种情感现象,在营造问题之外,超乎营造之上。”

△南通仁恒置地世纪营销中心外立面效果图

△南通仁恒置地世纪营销中心整体效果图

△南通仁恒置地世纪营销中心外立面
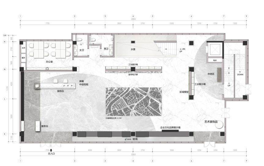
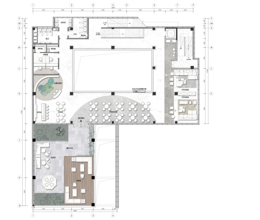
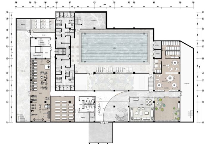
▼平面图

△F1平面图

△F2平面图

△B1平面图
▼立面图



仁恒置地世纪营销中心位于江苏古都南通市中央创新区,HWCD以建筑作为桥梁,承载起城市的历史与未来。
设计师采用极简的结构主义探索城市与艺术的交融,所谓艺术逢知己,即是通过空间之美传达现代生活方式。


△接待区
前台接待区作为营销中心的初步印象,用弧线与直线的造型勾勒出利落的三维线条感。把金属材质的镜面天花与抛光大理石结合,进行一场有趣的空间探讨。

△休息等候区
椭圆形的休息等待区用简单的不规则线条打造出律动的视觉效果,巨型落地玻璃和巴塞罗那椅的放置贯彻了密斯凡德罗的极简结构主义。
打破传统建筑设计中的封闭式空间,大面积利用玻璃和金属等透光反光的材质来化解建筑内外的界限。

△户外
室外空间利用巧妙的几何分割和光影变化,确保了整体开阔性的同时构建了建筑内外的和谐关系。水景的布置在视觉上创造出镜面效果,强调了整体的艺术形态。

△艺术楼梯
高对比度的黑色与白色打造出螺旋形的艺术楼梯,将巨型吊灯放置其中,宛如耀眼璀璨的星河倾洒在神秘黑色夜幕中,引发无限遐想。

△服务台
去除不必要的元素,展示墙与服务台没有任何多余的装饰,没有繁复的摆设,只用大面积的留白和最简洁有力的线条表达了结构主义的核心。
镜像空间的设计依赖于结构,但不受结构限制,而是从中产生,演绎出极简主义的精髓。

△B1洽谈区
B1洽谈区设计用中性色调打造出一个舒适的洽谈空间,大理石与皮革,木质与布艺,不同材质在碰撞中融合出独特的现代生活方式与品位。
在同一个空间内,虽没有明显隔断,但设计师通过几何模块与线条的巧妙组合,自然地分割了空间功能,局部与整体的分离效果既是独立的,又是一个整体。

△儿童休息区
柔和的弧线与不规则的椭圆形打造的儿童活动区,设计师加入明亮的暖黄色增加了空间的趣味性。与洽谈区仅一墙之隔,并且设计成半透明隔断,方便家长在沟通之余一目了然地看到孩子的活动范围。

△楼梯间
线条结构感流畅简洁的楼梯空间,用高纯度的白色空间与光影调和,通过直线特征和视觉透视感,打造出一个巨大的半开半合的现代空间。
以不规则的几何形态拼合而成的艺术雕塑,正如结构主义的本质,看似分离的局部之间,往往并非无序的杂乱拼接。

△二楼洽谈区
洽谈区的设计上将现代建筑美学的结构主义与功能主义相结合,以深色博古架作为隔断,搭配米白色沙发组,强化了视觉层次感。而顶灯造型和雕塑作品的摆放,让“方”与“圆”两种不同的几何形态在空间内对话。

△二楼讨论区及水吧台
步入讨论区,空间节奏简约明了,布艺和石材恰到好处地软硬结合,看似是随意的混搭,实则丰富了空间层次,突出了整体的功能多样性。
结构主义的艺术形态打造独特的现代建筑美学,HWCD用点线面的交融架构出空间的起承转合。
内容摘自/HWCD